Пентхаус з ремонтом на Французькому бульварі, 9 Перлина (№ 213-141-071)
Ціна: 720 000 $

Французський бульвар, 60, Одеса, Одеська, Приморський
Характеристики
| Ціна: | 720 000 $ |
|---|---|
| № об'єкта: | 213-141-071 |
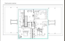
| Кімнат: | 5 розд |
| Поверх: | 22 / 23 ліфт |
| Площа: | 530 / 350 / 90 м2 |
| Санвузол: | 3+ роздільний |
| Балкон: | тераса |
| Вид на море: | + |
| Назва ЖК: | 9 Жемчужина |
| Стан квартири: | Євроремонт |
| Документи: | Свідотство про право власності |
| Єксклюзив: | - |
| Тип отопления: | Автономне |
Опис
Квартира де з кожної спальні прямий вид моря.
Продається пентхаус у престижному житловому комплексі «Дев’ята Перлина» від забудовника Kador Group.
Будинок розташований на Французькому бульварі — в одній з найпрестижніших та найзеленіших локацій Одеси, у безпосередній близькості до моря, пляжів і всіх необхідних інфраструктурних об’єктів.
Загальна площа квартири становить 530 квадратних метрів. Пентхаус займає два рівні, що дозволяє зручно зонувати простір і створити по-справжньому комфортне житло. По периметру квартири облаштовані просторі тераси, з яких відкриваються захопливі панорамні види на Чорне море та місто.
На даний момент у квартирі проводиться ремонт. Важливо: ціна буде зростати в міру виконання оздоблювальних робіт.
Цей пентхаус — ідеальний вибір для тих, хто шукає комфортне, просторе та статусне житло в найкращій локації Одеси.
В данний момент доступна аренда 5000$/місяць.
ID213-141-071












