2 поверховий будинок на 10 станції Фонтану (№ 22-229-608)
Ціна: 285 000 $

Адреса: Арбузна вулиця, 7, Одеса, Одеська, Київський
Характеристики
| Ціна: | 285 000 $ |
|---|---|
| № об'єкта: | 22-229-608 |
| Тип: | будинок |
| Поверхів: | 3 |
| Спалень: | 5 |
| Площа будинку: | 243 м2 |
| Ділянка: | 4,4 сот |
| Стан будинку: | Від будівельника |
| Держакт: | + |
| Кадастровий номер: | + |
| Каналізація: | Міська |
| Єксклюзив: | - |
| Введений в єксплуатацію: | - |
| Наявність підвалу: | - |
Опис
Новий триповерховий будинок з екологічного червоного керамічного блоку, облицьований фасадною цеглою.
Конструкцію будинку спроектовано відомим Українським конструктором.
Земельна ділянка – 4,39 сотки (державний акт).
Загальна площа будинку – 243 м. кв.
4 спальні, кабінет, вітальня, кухня, 3 санвузли, туалет, спортзал, топкова, спортзал, техприміщення.
4 місця для автомобілів.
Будівництво будинку велося із дотриманням технологій будівництва. Фундамент, до кладки основних стін, відстоювався протягом 9 місяців.
Фундамент – монолітна армована плита.
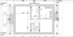
Цокольний поверх - спортзал, топкова, пральна, комора, генераторна.
Армований бетон, товщина зовнішніх стін 600 мм бетон та 100 мм епс, товщина перекриття 240 мм.
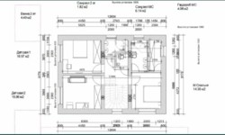
Перший поверх – гардероб, санвузол, кабінет, вітальня, кухня, сходи, гостьова спальня.
Перекриття (підлога, стеля), монолітна плита 240 мм, фасадні стіни 640 мм (керамічний 2,12 ефективний блок (СБК) 520 мм + облицювальна керамічна цегла 120 мм), внутрішні перегородки керамічна цегла.
Вікна REHAU GENEO – товщина профілю 86 мм, товщина потрійного склопакета 42 мм.
Другий поверх - майстер спальня з гардеробом та санвузлом, спальня (дитяча №1), спальня (дитяча №2), туалет, ванна.
Перекриття стеля дерев'яні балки 400 мм, фасадні стіни 640 мм (керамічний блок (СБК) + облицювальна керамічна цегла), внутрішні перегородки керамічна цегла.
Дах вальмовий - керамічна черепиця.
Підведено міські комунікації:
Електрика – 27 кВт
Вода та міська каналізація.
Газ.
Будинок готовий до прокладання внутрішніх комунікацій та оздоблення.
Будинок розташований на невеликій вулиці без трафіку машин.
У пішій доступності дитячі садки, школи, спортивні комплекси, спа-центри, пляж.
ID22229608











