Двоповерховий будинок із басейном у закритому котеджному кооперативі на 16-й станції Фонтану (№ 22-412-441)
Ціна: 525 000 $

Адреса: Академіка Вільямса вулиця, 21, Одеса, Одеська, Київський
Характеристики
| Ціна: | 525 000 $ |
|---|---|
| № об'єкта: | 22-412-441 |
| Тип: | будинок |
| Поверхів: | 2 |
| Спалень: | 3 |
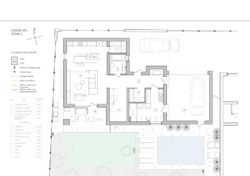
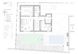
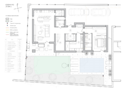
| Площа будинку: | 240 м2 |
| Ділянка: | 4.2 сот |
| Стан будинку: | Від будівельника |
| Держакт: | + |
| Кадастровий номер: | + |
| Каналізація: | Міська |
| Єксклюзив: | - |
| Введений в єксплуатацію: | + |
| Наявність підвалу: | - |
| Додатково: | гараж, котеджне містечко |
Опис
Просторий та ергономічний будинок площею 224 м² розташований на ділянці 4,2 сотки. Збудований з екологічно чистих матеріалів, він поєднує в собі комфорт, функціональність і стиль. Завдяки продуманому архітектурному рішенню кожен метр простору використаний максимально ефективно. Закрита територія кооперативу з чотирьох будинків гарантує тишу, безпеку та приватність.
Переваги:
Будинок з екологічно чистих матеріалів.
Власний басейн для комфортного відпочинку.
Продумане планування та ергономічний дизайн.
Закрита територія з обмеженим доступом.
Гараж на 2 паркомісця.
Престижний і затишний район
Розвинена інфраструктура — поруч супермаркети, школи, ресторани
Зручна транспортна розв’язка
Ідеальний варіант для тих, хто цінує якість, екологічність та комфорт.
ID 22412441

















