Будинок в Червоному Хуторі в розтермінування (№ 22-438-419)
Ціна: 140 000 $

Адреса: Першотравнева вулиця, Одеса, Одеська, Київський
Характеристики
| Ціна: | 140 000 $ |
|---|---|
| № об'єкта: | 22-438-419 |
| Тип: | будинок |
| Поверхів: | 2 |
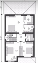
| Спалень: | 4 |
| Площа будинку: | 135 м2 |
| Ділянка: | 4 сот |
| Стан будинку: | Будуєтсься |
| Держакт: | + |
| Кадастровий номер: | + |
| Каналізація: | Вигрібна яма |
| Єксклюзив: | - |
| Введений в єксплуатацію: | - |
| Наявність підвалу: | - |
Опис
Продається двоповерховий будинок у Червоному Хуторі. Загальна площа будинку становить 135 м2, земельна ділянка 4 сотки. Раціональне планування дозволяє комфортно використовувати простір як для постійного проживання, так і для здачі в оренду.
Передбачене місце для паркування автомобіля. Гараж 20 м2, тераса 24 м2.
Фасад будинку буде виконаний з травертину, та декоративноі штукатурки, що надає будинку сучасного та презентабельного вигляду.
Можливе придбання в розстрочку з першим внеском 50 відсотків. Безвідсоткова розстрочка терміном до 18 місяців.
Підключені: газ, вода, електрика.
Будинок розташований у перспективному та зручному районі, що робить його вигідною інвестицією та чудовим варіантом для комфортного життя.
ID 22-438-419






