Нежитлове приміщення біля Олександрівського проспекту (№ 2-476-081)
Ціна: 400 000 $

Характеристики
| Ціна: | 400 000 $ |
|---|---|
| № об'єкта: | 2-476-081 |
| Тип: | об'єкт сфери послуг, готель, інше |
| Поверх: | 1 / 3 |
| Площа: | 302 м2 |
| Єксклюзив: | - |
| Фасадний вхід: | + |
| Стан: | Вимагає ремонту |
| Фасадні вікна: | + |
| Цоколь: | - |
| Тип об'єкта: | Офісне приміщення |
| Додатково: | окремий вхід |
Адреса: Одеська, Одеса, Приморський, Покровский переулок, 16
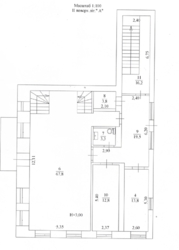
Нежитлове приміщення біля Олександрівського проспекту.
Кутовий фасад на дві вулиці, загальна площа будівлі – 302 м2 у трьох рівнях.
На першому поверсі одне фасадне вікно. Опалення – двоконтурний котел.
Заведена потужність 25 квт.
Відмінно підійде під офіс, хостел.
ID2476081







