Головна >> Продаж квартир >> Об'єкт №212871076

Однокімнатна квартира в ЖК Realpark.  (№ 212-871-076)

Однокімнатна квартира в ЖК Realpark. фото 1

Ціна: 28 500 $

Характеристики

Ціна: 28 500 $
№ об'єкта: 212-871-076
Кімнат: 1 розд
Поверх: 13 / 17 ліфт
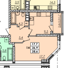
Площа: 39 / - / 18 м2
Санвузол: 1 сумісний
Балкон: балкон
Вид на море: -
Назва ЖК: Realpark
Стан квартири: Від забудовника
Документи: Договір інвестування
Єксклюзив: -
Тип отопления: Автономне
Додатково: новобудова

Адреса: Одеська, Одеса, Київський, Овідіопольська дорога, 3

Однокімнатна квартира в ЖК Realpark.

Квартира розташована на 13 поверсі 17-поверхового будинку в 1.3 секції (здана). Квартира площею 39 м2 розпланована на окрему кімнату, кухню площею 18 м2 та сумісний санвузол. Є балкон. Стан від забудовника.

Житловий комплекс Realpark має цілодобову охоронну території, консержа, оснащений системою відеоспостереження, має піздемний та гостьовий паркінг, пасажирський та грузовий ліфти.
Розвинена інфраструктура. Поруч дитячий садок, аптеки, ресторани, кафе, відділення пошти, ринок, відділення банку, банкомати, магазини, кіоски, супермаркети, ТРЦ, парк, дитячий майданчик, зупинка транспорту.

№212871076

Об'єкт на карті

Замовити зворотній дзвінок