Пентхаус в ЖК Ланжерон (№ 212-947-093)
Ціна: 1 100 000 $

Віри Інбер вулиця, 5, Одеса, Одеська, Приморський
Характеристики
| Ціна: | 1 100 000 $ |
|---|---|
| № об'єкта: | 212-947-093 |
| Кімнат: | 5 розд, студія |
| Поверх: | 16 / 17 ліфт |
| Площа: | 450 / - / 60 м2 |
| Санвузол: | 3+ сумісний |
| Балкон: | тераса |
| Вид на море: | + |
| Назва ЖК: | Ланжерон |
| Стан квартири: | Під чистове оздобдення |
| Документи: | Свідотство про право власності |
| Єксклюзив: | - |
| Тип отопления: | Автономне |
| Додатково: | новобудова |
Опис
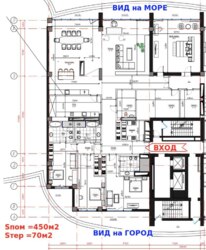
Пентхаус в ЖК Ланжерон.
16 поверх, загальна площа 450 м2.
Розплановано на 4 кімнати, 4 санвузли, кухня-їдальня, велика вітальня, 2 тераси.
Площа терас 70 м2. Стан квартири - під чистове оздоблення.
Елітний комплекс Ланжерон - це одна з останніх тенденцій на ринку курортної нерухомості.
ЖК 'Ланжерон' розташований на першій лінії біля моря, закрита територія, охорона, відеоспостереження, рецепція.
№ 212-947-093








