Двокімнатна квартира в новому комплексі 63 Перлина (№ 212-981-397)
Ціна: 87 745 $

Краснова вулиця, 3, Одеса, Одеська, Хаджибейський
Характеристики
| Ціна: | 87 745 $ |
|---|---|
| № об'єкта: | 212-981-397 |
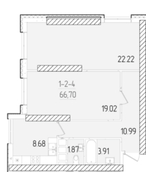
| Кімнат: | 2 розд |
| Поверх: | 2 / 24 ліфт |
| Площа: | 67,3 / - / - м2 |
| Санвузол: | 2 |
| Вид на море: | - |
| Назва ЖК: | 63 Жемчужина |
| Стан квартири: | Від забудовника |
| Документи: | Договір інвестування |
| Єксклюзив: | - |
| Тип отопления: | Автономне |
| Додатково: | новобудова |
Опис
Двокімнатна квартира в 63 Перлині на Краснова .
Житловий комплекс KADORR City — частина нового житлового кварталу з власною інфраструктурою, здатною забезпечити повну автономність мешканцям: великим мережевим супермаркетом, аптеками, стоматологією, хімчисткою, салонами краси, банками, супермаркетом дитячих товарів Amador, фітнес-клубами, ресторанами та іншими сервісами. Для дітей забудовник передбачив спеціальну зону з безпечними ігровими майданчиками різної тематичної спрямованості, для дорослих — зелені зони для відпочинку. Через всю територію проходить алея, на якій можна прогулятися або займатися спортом. Недалеко від новобудови парки «Перемоги», «Космонавтів», «Азербайджан», «Артилерійський» та берегова лінія з кількома пляжами.
Житловий комплекс KADORR City будують практично на одній відстані від Люстдорфської та Фонтанської дороги, зокрема від 4-ої станції Великого Фонтану, через яку курсують кілька маршрутів громадського транспорту. Поруч з новобудовою зупинка автобусу №25 та міських маршруток №124, №145, №148, №150 та №221, а за 7 хвилин пішки зупинки кількох тролейбусних маршрутів та маршрутних таксі на Адміралтейському проспекті, що дозволить при необхідності добиратися до інших мікрорайонів міста на громадському транспорті. Якщо потрібно до іншого населеного пункту, 7 хвилин на авто до залізничного вокзалу та 13 хвилин до центрального автовокзалу.
ID212981397








