Однокімнатна квартира з сучасним ремонтом в новому комплексі в Хаджибейському районі (№ 213-047-365)

Ціна: 39 760 $
Характеристики
| Ціна: | 39 760 $ |
|---|---|
| № об'єкта: | 213-047-365 |
| Кімнат: | 1 |
| Поверх: | 6 / 11 ліфт |
| Площа: | 38 / 16 / 13 м2 |
| Санвузол: | 1 |
| Балкон: | лоджія |
| Вид на море: | - |
| Назва ЖК: | Артвіль |
| Стан квартири: | Євроремонт |
| Документи: | Договір інвестування |
| Єксклюзив: | - |
| Тип отопления: | Автономне |
| Додатково: | новобудова |
Адреса: Одеська, Одеса, Хаджибейський, Спрейса вулиця, 1
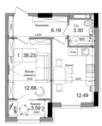
Бажаєте жити у затишному містечку зі всією необхідною інфраструктурою? Тоді переїжджайте до квартири AB-04-06/00012 у житловому містечку Artville. Вона розташована на шостому поверсі у домі №4.
У вас буде досить простора кухня, площею 12.49 м2 . Тут комфортно обідати всією родиною.
Площа санвузла — 3.30 м2 .Завдяки правильному розташуванню точок підключення, тут вміщується душова кабіна, пральна машина та вся інша необхідна сантехніка.
Засклена лоджія 3.59 м2 добре зберігає температуру, завдяки якісним стеклопакетам. Вона може перетворитися у робоче місце школяра, особистий кабінет або комфорту лаунж-зону з кріслами-мішками.
Тут на вас чекає спокійне та комфортне життя на свіжому повітрі, в оточенні продуманої інфраструктури та живої паркової зони, в якій враховано потреби різних вікових груп. В ARTVILLE працює окрема поліцейська ділянка. Вона розташована у центрі Артвілевського парку. У містечку є служба безпеки, яка цілодобово стежить за громадськими місцями через камери спостереження та патрулює містечко. Кожен мешканець може підключити свої охоронну та протипожежну системи до пульта служби безпеки.
Поруч із житловим містечком — велика транспортна розв'язка у всі райони Одеси, а також у напрямках Чорноморська, Овідіополя, Кишиніва та Києва. Від ARTVILLE до центру Одеси — 20 хвилин на авто, до аеропорту — 5 хвилин, до залізничного вокзалу та автостанції — 15 хвилин.У комплектацію входять вбудовані кухонні меблі, мийка, змішувач, варильна поверхня на 4 комфорки. У кожній кімнаті встановлений кондиціонер. У квартирі
виконано розведення електрики, встановлені розетки, вимикачі та світильники в натяжних стелях. Вхідні двері — броньовані, міжкімнатні двері зроблені з
ламінованої МДФ. Встановлені та підключені до опалення сталеві радіатори. В залежності від типу приміщення, на підлозі покладений ламінат або керамічна
плитка. На стінах житлових кімнат — вінілові шпалери. Санвузол облицьований плиткою. Встановлені унітаз, умивальник, ванна, змішувачі та бойлер.
ID 213-047-365








