Двоповерхова квартира в Приморському районі біля моря  (№ 213-092-535)

Двоповерхова квартира в Приморському районі біля моря фото 1

Ціна: 455 000 $

Характеристики

Ціна: 455 000 $
№ об'єкта: 213-092-535
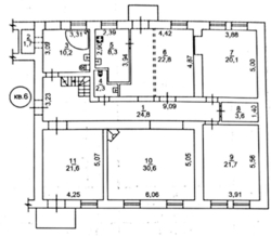
Кімнат: 5 розд
Поверх: 3 / 3
Площа: 350 / - / 10 м2
Санвузол: 2
Балкон: балкон
Вид на море: -
Назва ЖК:
Стан квартири: Під ремонт
Документи: Свідотство про право власності
Єксклюзив: -
Тип отопления: АГВ

Адреса: Одеська, Одеса, Приморський, Мала Арнаутська вулиця, 1

Двоповерхова квартира в елітному районі міста Приморському. Розташована на Малій Арнаутській кут Белинського. Парк Шевченка 5 хв. Море 10-15 хв пішки. Історичний будинок. Пам'ятка архітектури. 3 поверх та пентхаус. Підлога паркет. Італійські двері. Дах перекритий. два санвузли. Опалення електричний котел – індивідуальне. Висота стелі 3 м. Двостороння, тихий двір . Квартира сонячна.1 поверх 175 м2 - 5 кімнат + комора, кухня, два санвузли. Два балкони. Другий поверх 185 м2. за фактом та 175 м.кв. за техпаспортом – відкритий простір. Під ремонт. Перед парадною є кишеня для автомобіля.
Поряд розвинена інфраструктура, музкомедія, ресторани, море, жд вокзал.
ID 213-092-535

Об'єкт на карті

Замовити зворотній дзвінок