Простора однокімнатна квартира в Приморському районі. Розтермінування (№ 213-109-179)

Ціна: 61 080 $
Характеристики
| Ціна: | 61 080 $ |
|---|---|
| № об'єкта: | 213-109-179 |
| Кімнат: | 1 |
| Поверх: | 3 / 25 ліфт |
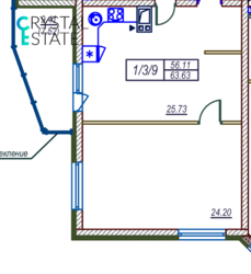
| Площа: | 63,63 / 24 / 26 м2 |
| Санвузол: | 1 |
| Балкон: | балкон |
| Вид на море: | - |
| Назва ЖК: | Удобный |
| Стан квартири: | Від забудовника |
| Документи: | Договір інвестування |
| Єксклюзив: | - |
| Тип отопления: | Автономне |
| Додатково: | новобудова |
Адреса: Одеська, Одеса, Приморський, Середньофонтанська вулиця, 1А
Простора однокімнатна квартира , яку можна перепланувати в двокімнатну. Є розтермінування без подорожчання на 5 місяців з першим внеском 50%
Розташована на 3 поверсі і розпланована на передкокій, велику кухню вітальню, простору спальню( яка ділиться на дві кімнати), санвузол та великий балкон.
Житловий комплекс «Удобний» — це будинок бізнес-класу у центрі Одеси, поруч зі сквером Героїв Небесної Сотні й за декілька хвилин автомобілем від Одеського зоопарку, дендропарку Перемоги, ботанічного саду, Траси Здоров'я та моря. Новобудова виділяється застосуванням різної поверховості, великою площею скління та пастельною кольоровою гамою фасадів. У внутрішньому дворі облаштовані місця для відпочинку та ігрові майданчики для дітей. Мешканці з автомобіля оцінять наявність дворівневого паркінгу на 173 місця з відкритою стоянкою на 27 місць на даху.
У пішому доступі від житлового комплексу «Удобний» супермаркети «АТБ-Маркет» — 4 хвилини та «Копійка» — 7 хвилин. Також придбати продукти за 6 хвилин пішки від будинку можна у ТРЦ Fontan Sky Center, де крім продуктового відділу працює галерея магазинів, кінотеатр, дитячий розважальний центр та фуд-корт з декількома кафе і ресторанами, або у супермаркетах «Овен», «Таврія-В» та «Сільпо», витративши на дорогу ті ж 6 хвилин, але автомобілем. Великий вибір домашніх продуктів, свіжих овочів та фруктів завжди можна знайти на ринку «Привоз», до якого 8 хвилин на авто.
ID 213-109-179















