Трехкімнатна квартира в ЖК Кандінский Вид моря (№ 213-111-010)

Ціна: 305 000 $
Характеристики
| Ціна: | 305 000 $ |
|---|---|
| № об'єкта: | 213-111-010 |
| Кімнат: | 3 суміж |
| Поверх: | 20 / 22 ліфт |
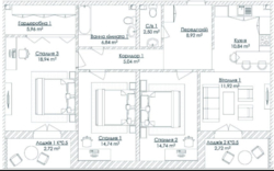
| Площа: | 105.88 / 60.34 / 10.84 м2 |
| Санвузол: | 1 сумісний |
| Балкон: | лоджія |
| Вид на море: | + |
| Назва ЖК: | Кандинский |
| Стан квартири: | Від забудовника |
| Документи: | Договір інвестування |
| Єксклюзив: | - |
| Тип отопления: | Автономне |
| Додатково: | новобудова |
Адреса: Одеська, Одеса, Приморський, Французський бульвар, 63/65
Трехкімнатна квартира в ЖК Кандинський. Загальна площа 105.88 м2. Другий поверх. Прекрасний вид моря з вікна.
Комплекс бізнес-класу в першій лінії моря. Цілодобова охорона території. Передбачено басейн, лаунж-зону, ресторан, фонтани, простір для дітей. Свій вихід до моря через 'Казковий тунель'. Траса здоров'я, близькість центру, ТРЦ Сади Перемоги, пляжі та Ботанічний сад – все це в безпосередній близькості робить проживання у ЖК Кандинський неймовірно комфортним.
ID 213-111-010







