Пентзаус з терасою в ЖК Ювілейний, вид моря (№ 213-165-713)

Ціна: 1 156 750 $
Характеристики
| Ціна: | 1 156 750 $ |
|---|---|
| № об'єкта: | 213-165-713 |
| Кімнат: | 4 |
| Поверх: | 10 / 10 ліфт |
| Площа: | 330 / - / - м2 |
| Санвузол: | 3+ сумісний |
| Балкон: | тераса |
| Вид на море: | + |
| Назва ЖК: | Юбилейный |
| Стан квартири: | Від забудовника |
| Єксклюзив: | - |
| Тип отопления: | Автономне |
Адреса: Одеська, Одеса, Приморський, Французський бульвар, 29А
Пентхаус преміум класу в новому будинку від Холдингу ЗАРС на Французькому бульварі, 29, звідки відкривається вражаючий панорамний вид на море та місто.
Планування пентхауса передбачає можливість облаштування індивідуального басейну. Для цього вже сконструовано чашу басейну з дотриманням усіх технологічних норм. Наявність технічного поверху під усією площею пентхауса дозволяє розмістити необхідні комунікації та інженерні системи для його експлуатації.
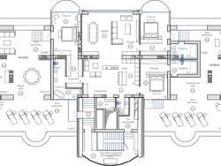
Загальна площа 330 м2. Площа приміщень:
- передпокій / кухня 43 м2
- їдальня / вітальня 50, 8 м2
- майстер-спальня 24 м2 (гардероб 10 м2, санвузол 13, 8 м2)
- спальня 1 --25 м2 (санвузол 8 м2)
- спальня 2 - 22 м2 (санвузол 8 м2)
- мультифункціональне приміщення / кабінет 25 м2
- гостьовий санвузол 4, 5 м2
- тераса 1 - 134, 7 м2
- тераса 2 133, 9 м2
- технічне приміщення 9 м2
- хол 4, 5 м2
Будинок розташований всього за 400 метрів від моря та у 40 метрах від парку «Ювілейний». Таке поєднання чистого морського та «лісового» повітря створює найкращі екологічні умови для життя.
Ландшафтний дизайн, спеціально розроблений навколо будинку, ідеально доповнює загальну концепцію комплексу.
«Будинок Каркашадзе» на Французькому бульварі, 29 це концепція справді комфортного життя на узбережжі. Концепція будинку на Французькому бульварі, 29 передбачає комфорт та абсолютну приватність мешканців.
Згідно з попереднім дизайн-проєктом, пентхаус площею 330, 5 м2 включає:
- майстер-спальню з власною гардеробною та санвузлом;
- 2 окремі кімнати / спальні з індивідуальними санвузлами;
- мультифункціональне приміщення / кабінет;
- кухню та їдальню / вітальню з панорамним склінням
2 просторі тераси кожна з яких виконує окрему функцію зони відпочинку. Одна з них може стати ідеальним місцем для затишних зустрічей із сімєю та друзями, тоді як інша бути вашою персональною лаунж-зоною для спокійної релаксації на свіжому повітрі.
№ 213-165-713













