Однокімнатна квартиру в ЖК Модерн на 6 станція Фонтану (№ 213-166-075)

Ціна: 54 000 $
Характеристики
| Ціна: | 54 000 $ |
|---|---|
| № об'єкта: | 213-166-075 |
| Кімнат: | 1 розд |
| Поверх: | 8 / 24 ліфт |
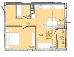
| Площа: | 53,09 / 14,6 / 25,4 м2 |
| Санвузол: | 1 сумісний |
| Балкон: | лоджія |
| Вид на море: | - |
| Назва ЖК: | Модерн |
| Стан квартири: | Від забудовника |
| Документи: | Договір інвестування |
| Єксклюзив: | - |
| Тип отопления: | Автономне |
Адреса: Одеська, Одеса, Київський, Івана Франка вулиця, 40
1-кімнатна квартира в ЖК Модерн від будівельної компанії 'Стікон'.
Будинок збудований і зданий. 8 поверх 24 поверхового будинку.
Квартира не кутова. Загальна площа – 53.09 м2, кухня-стлова - 25,4 м2 спальня – 14.6 м2 . Стан від будівельників. Усередині квартири несучих стін немає. Можна перепланувати в 2-х кімнатну квартиру. Закрита територія, цілодобова охорона, відеоспостереження.
Консьєрж – сервіс. Три ліфти в кожному під'їзді - один вантажний та два пасажирські. 8 квартир на поверсі. Є дитячий майданчик, зона відпочинку. Підземний паркінг, гостьова парковка. Встановлено аварійний генератор на ліфти, опалення, воду, світло на поверхах. Відмінне розташування комплексу, хороша транспортна розв'язка. Без комісії та додаткових витрат. Переуступку оплачує продавец.
ID 213-166-075







