2-кімнатна квартира, Прохоровський квартал, Центр (№ 213-178-262)

Ціна: 57 000 $
Характеристики
| Ціна: | 57 000 $ |
|---|---|
| № об'єкта: | 213-178-262 |
| Кімнат: | 2 розд |
| Поверх: | 10 / 16 ліфт |
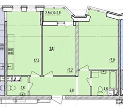
| Площа: | 69 / 31 / 17 м2 |
| Санвузол: | 2 сумісний |
| Балкон: | лоджія |
| Вид на море: | - |
| Назва ЖК: | Прохоровський квартал |
| Стан квартири: | Від забудовника |
| Документи: | Договір інвестування |
| Єксклюзив: | - |
| Тип отопления: | Автономне |
Адреса: Одеська, Одеса, Приморський, Прохорівська вулиця, 40
Двокімнатна квартира в ЖК 'Прохоровський квартал' в центрі міста.
Секція 3.1 10 поверх 16-поверхового будинку. Загальна площа квартири 69м2.
Продаж по переуступці. Поряд є все для комфортного життя: паркінг, магазини , школи, банки , жд вокзал, автовокзал , центр міста в пішій доступності.
ID 213-178-262













