2 кімнатна квартира в ЖК Дерби на 5 станції Фонтану. (№ 213-238-453)
Ціна: 68 000 $

Фонтанська дорога, 6А, Одеса, Одеська, Приморський
Характеристики
| Ціна: | 68 000 $ |
|---|---|
| № об'єкта: | 213-238-453 |
| Кімнат: | 2 розд |
| Поверх: | 9 / 11 ліфт |
| Площа: | 62 / 26 / 19 м2 |
| Санвузол: | 1 сумісний |
| Вид на море: | - |
| Назва ЖК: | Дерби |
| Стан квартири: | Під чистове оздобдення |
| Документи: | Договір інвестування |
| Єксклюзив: | - |
| Тип отопления: | Автономне |
Опис
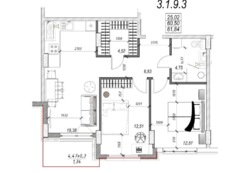
2 кімнатна квартира в ЖК Дерби на 5 станції Великого Фонтану. Загальна площа квартири 62 м2. Планування - передпокій, кухня вітальня, дві окремі спальні, гардеробна,санвузол. Стан квартири під чистове оздоблення. В квартирі панорамне скління що додає світла та простору. З кухні є вихід на балкон. З вікон відкривається вид на іподром.Висота стелі 3 метри. Південна сторона світла.
Квартира розташована на 9 поверсі 11 поверхового будинку. Технрологія будівництва монолітно каркасна з заповненням стін газобетоном. Територія комплексу огороджена та знаходиться під відеонаглядом.
Локація квартири дозволяє за 10 хвилин дійти до парка Перемоги, за 10 хвилин дійти до Аркадії та моря. Поруч розташовані супермаркети, торгівельрні центри, школи, дитячі садки, вищі навчальні заклади. Зручне транспортне сполучення.
ID213-238-453









