Однокімнатна квартира з ремонтом в ЖК Мілос (№ 213-263-734)
Ціна: 98 000 $

Полуничний провулок, 24, Одеса, Одеська, Приморський
Характеристики
| Ціна: | 98 000 $ |
|---|---|
| № об'єкта: | 213-263-734 |
| Кімнат: | 1 розд |
| Поверх: | 2 / 15 ліфт |
| Площа: | 50 / 25 / 10 м2 |
| Санвузол: | 1 сумісний |
| Балкон: | балкон |
| Вид на море: | - |
| Назва ЖК: | Милос |
| Стан квартири: | Євроремонт |
| Документи: | Договір інвестування |
| Єксклюзив: | - |
| Тип отопления: | Автономне |
Опис
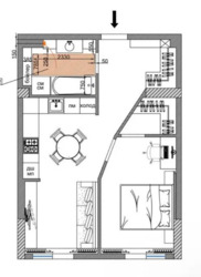
Однокімнатна квартира в ЖК Мілос. Квартира розташована в одному з найзатишніших районів - на 7-й Фонтану.
Знаходиться на безпечному та комфортному другому поверсі. Площа 50 м2, по плануванню велика спальна кімната, кухня-вітальня, сумісний санвузол.
Виконано якісний ремонт, робився «для себе», з увагою до деталей та довговічності. Проведена надійна електрика, сантехніка Ostendorf, в санвузлі встановлена тепла підлога.
Простір добре продуманий: багато освітлення, стіни оздоблені декоративною штукатуркою. Санвузол виконаний «під ключ» з використанням якісної сантехніки та обладнаний бойлером на 80 літрів. У спальні передбачена зручна гардеробна кімната, що робить житло ще більш комфортним та функціональним.
За п'ять хвилин ходьби від будинку розташована вся необхідна інфраструктура: дві сучасні лабораторії, аптеки, зоомагазини, магазини побутової хімії, ветеринарна клініка та грумінг-салон. Поруч знаходяться затишні ресторани, супермаркети АТБ, Обжора, Таврія В, а також кілька салонів краси, на першому поверсі грумінг, спортзал та нова пошта, ресепшн.
Локація відрізняється зручною транспортною розв'язкою, що дозволяє легко дістатися будь-якої частини міста. Через дорогу розташований зелений сквер, а в пішій доступності - знаменита Аркадія. До моря можна дістатися за 10 хвилин.
id213-263-734











