Пентхаус в ЖК Бельетаж, центр  (№ 213-280-097)

Ціна: 470 000 $

Пентхаус в ЖК Бельетаж, центр фото 1

Леонтовича вулиця, 16, Одеса, Одеська, Приморський

Характеристики

Ціна: 470 000 $
№ об'єкта: 213-280-097
Кімнат: 3 розд
Поверх: 16 / 17 ліфт
Площа: 140 / - / 40 м2
Санвузол: 2 роздільний
Балкон: балкон
Вид на море: -
Назва ЖК: Бельэтаж
Стан квартири: Під чистове оздобдення
Єксклюзив: -
Тип отопления: Автономне

Опис

Дворівнева квартира в ЖК Бельетаж.
Видова квартира з терасою, загальною площею 140 м2. Розташована на 16 поверсі 17 поверхового будинку.
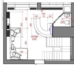
Розпланована на першому поверсі: кухня, вітальня, балкон, спальня, два санвузли, дві вбиральні.
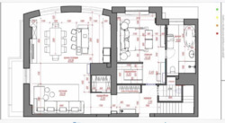
На другому поверсі: вітальня з терасою та санвузлом.
У квартирі виконано 70% ремонту: підлога, стіни, стелі, електрика, сантехніка частково вже встановлена. Є теплі підлоги, мармурові підвіконня.
Поруч з ЖК у пішій доступності: магазини, кафе, транспорт та вся міська інфраструктура.
Ідеальний варіант як для комфортного проживання, так і для вигідних інвестицій.
ID 213-280-097

Об'єкт на карті

Замовити зворотній дзвінок