3-кімнатна квартира в ЖК Чотири Сезони (№ 213-292-286)
Ціна: 130 000 $

Гагаріна проспект, 19-г, Одеса, Одеська, Приморський
Характеристики
| Ціна: | 130 000 $ |
|---|---|
| № об'єкта: | 213-292-286 |
| Кімнат: | 3 розд |
| Поверх: | 15 / 25 ліфт |
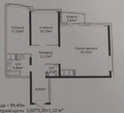
| Площа: | 99 / - / 30 м2 |
| Санвузол: | 2 роздільний |
| Балкон: | балкон |
| Вид на море: | - |
| Назва ЖК: | Четыре Сезона |
| Стан квартири: | Від забудовника |
| Документи: | Договір інвестування |
| Єксклюзив: | - |
| Тип отопления: | Автономне |
| Додатково: | новобудова |
Опис
3-кімнатна квартира в ЖК Чотири Сезони на проспекті Лесі Українки.
Квартира знаходиться на 15 поверсі 25 поверхового будинку.
Квартира загальною площею 99 м2 розпланована на 2 окремі кімнати і простору кухню-вітальню. Можливе перепланування на 3 спальні. Вид на море і Французький бульвар.
Закрита територія, цілодобова охорона, підземний і гостьовий паркінг, генератор.
ID 213292286







